Transformation d’une grange historique

Moudon (VD), 2026

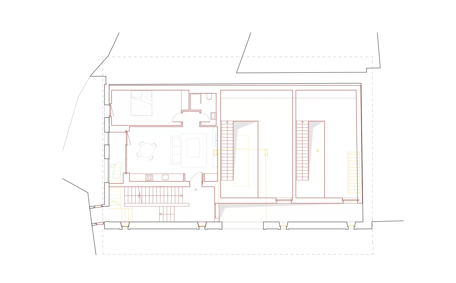
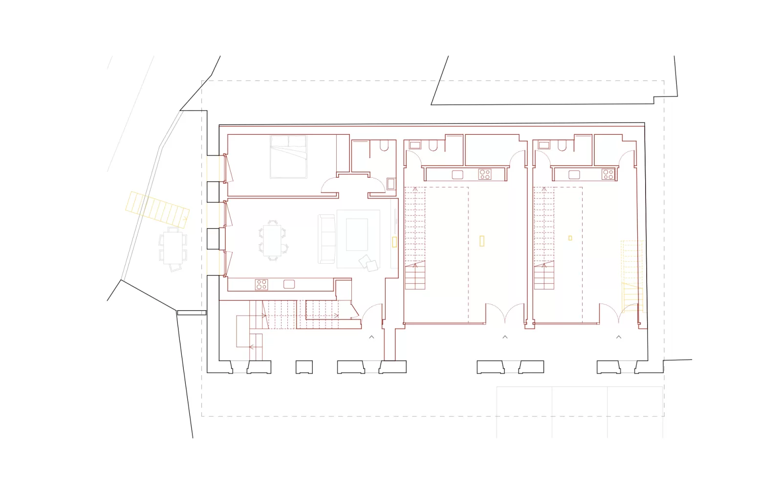
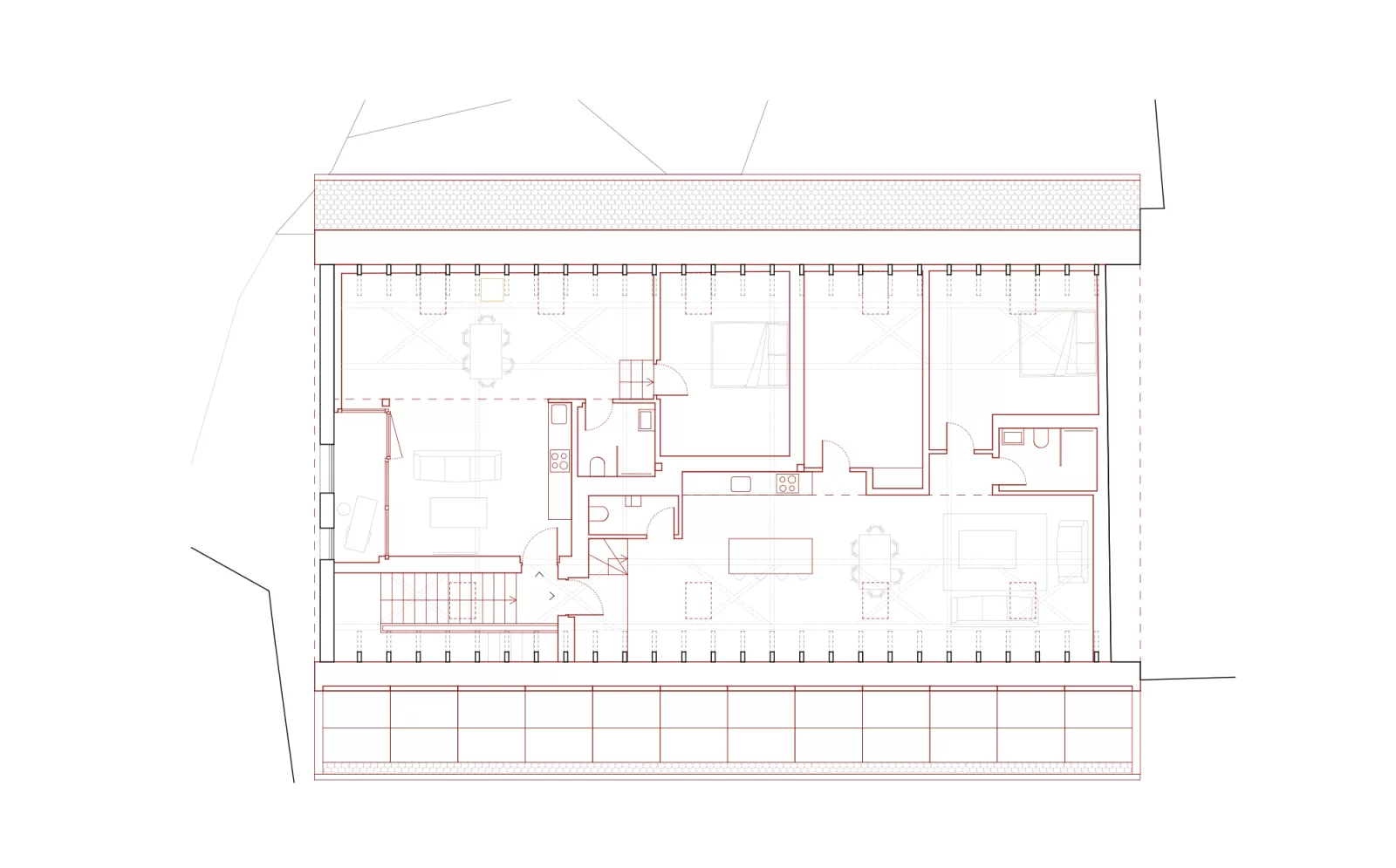
Transformation d’une grange datant de 1788 (Note 2 IMH) comprenant la création de quatre logements et de deux surfaces artisanales. Conservation et mise en valeur de la charpente existante.

Type
Transformation / Réhabilitation patrimoniale
Statut
Terminé
Maître de l'ouvrage
Privé
Surface
700m²
Coût
Confidentiel
Etendue du mandat
Toutes les phases SIA 102