Résidence étudiante

Saint-Sulpice (VD), 2027

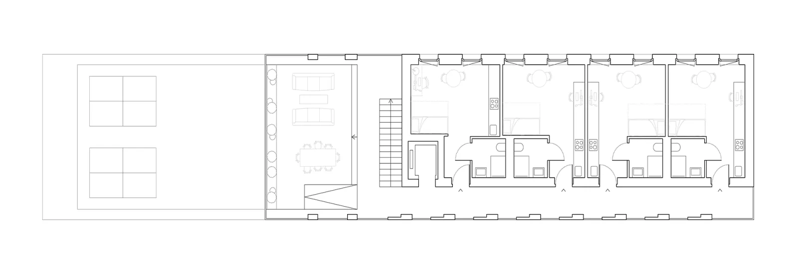
Construction d’un immeuble de logements étudiants (studios, chambres en colocation et chambres para-hôtelières) organisées autour d'une coursive extérieure.

Type
Construction neuve
Statut
En cours
Maître de l'ouvrage
Privé
Surface
700m²
Coût
Confidentiel
Etendue du mandat
Toutes les prestations SIA 102