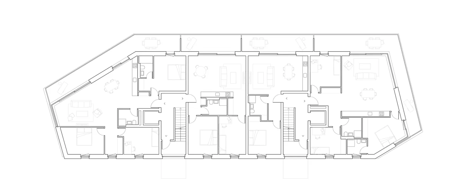
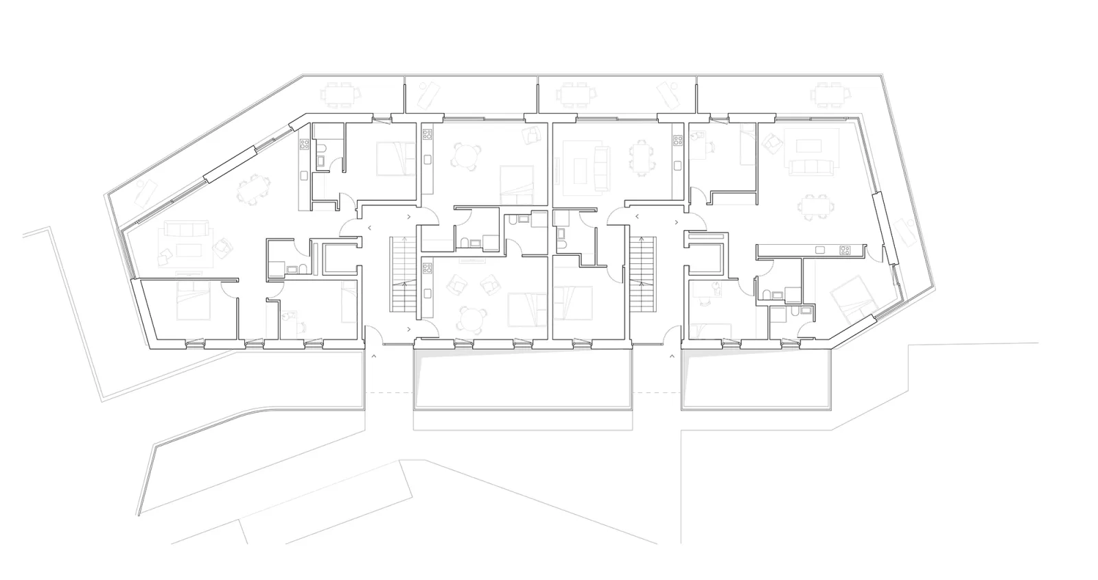
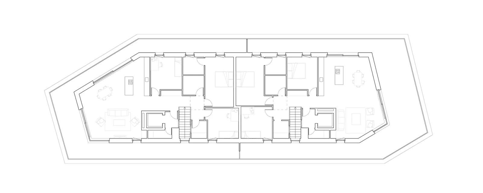
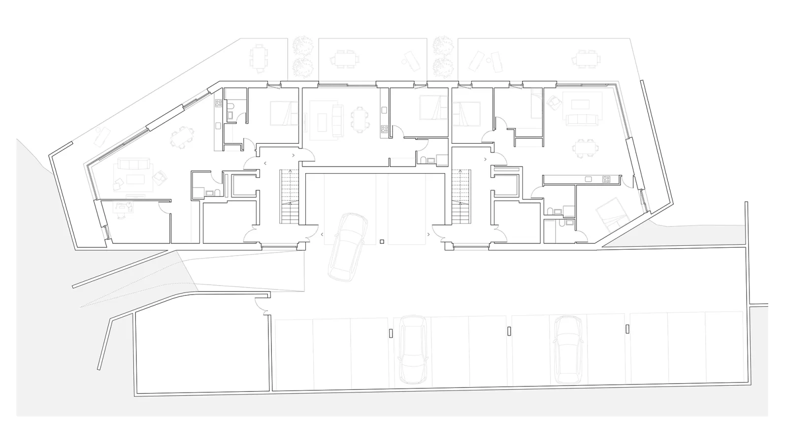
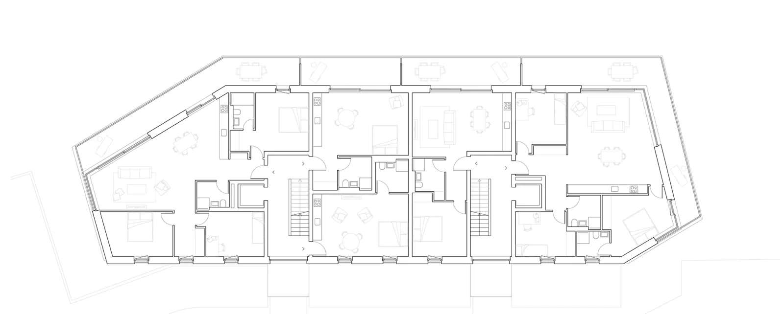
Résidence Arboris

Nyon (VD), 2027

Construction d’un immeuble d’habitation de typologies variées (studios, appartements familiaux, attiques).

Type
Construction neuve
Statut
En cours
Maître de l'ouvrage
Privé
Surface
2000m²
Coût
Confidentiel
Etendue du mandat
Toutes les prestatios SIA 102