Menu
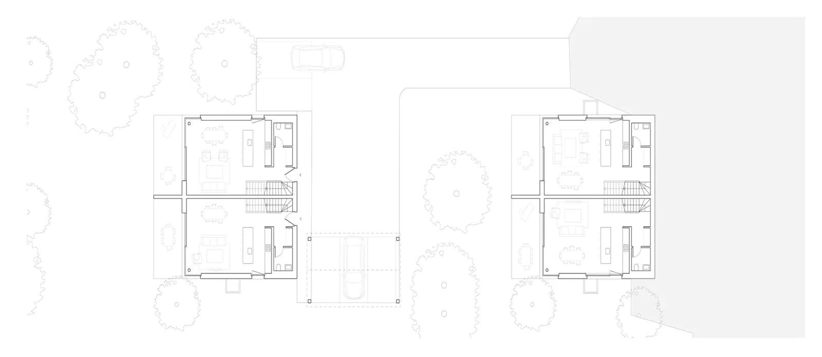
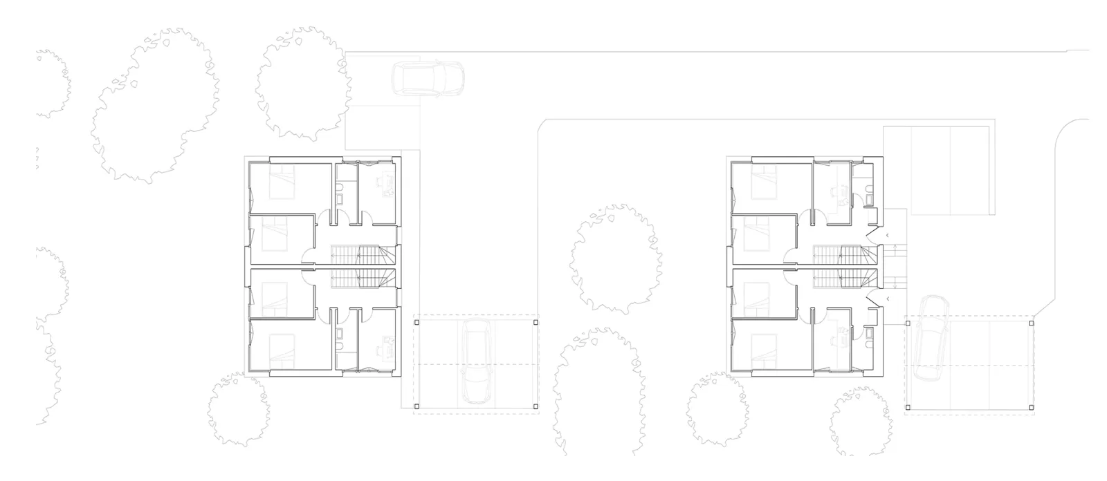
Résidence Arboria
Epalinges (VD), 2027
Construction de deux villas mitoyennes de haut standing
Type
Construction neuve
Statut
En cours
Maître de l'ouvrage
Privé
Surface
571m²
Coût
Confidentiel
Etendue du mandat
Toutes les prestations SIA 102
Home
Projets
Presse
Bureau
Contact
en
fr